Maison entre les murs

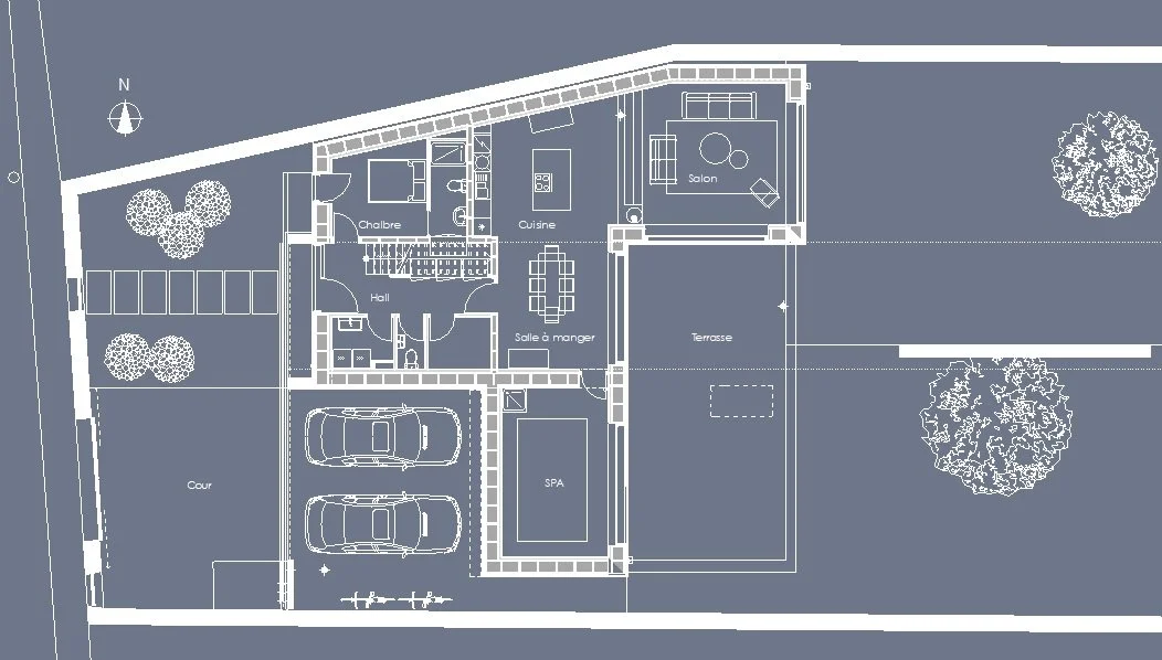
Installer une maison entre les murs de vignes, c’est s’implanter dans un parcellaire très marqué. C’est également profiter d’une situation privilégiée face à la Seine.

C’est aussi prendre soin de ces murs, s’implanter à la juste distance. Faire le choix des bonnes fondations, d’une structure légère en bois, d’un remplissage en paille. Tracer des lignes justes qui révèlent les belles perspectives sur le paysage.

Maîtrise d’ouvrage : Privée

Maîtrise d’œuvre : Ozalid architecture

Programme : Construction neuve d’une maison en bois et isolation paille dans un site remarquable

Année : Chantier en cours - Terrassement décembre 2025

Surface : 190 m²

Budget : 400 000€ HT

Localisation : Thomery

Précédent
Précédent

Maison MG26

Suivant
Suivant

Réhabilitations du bâti ancien